Генератори
sale - Інверторні генератори
- Бензинові генератори
- Газобензинові генератори
- Дизельні генератори
- Дизельні електростанції
Дивитись все
Акумулятори
- Акумулятори гелеві (GEL)
- Акумулятори мультигелеві (AGM)
- Акумулятори свинцево-кислотні (AGM)
- Акумуляторні батареї LiFePO4
- Зарядні пристрої для АКБ
Дивитись все
Показати всі категорії
Готівкою | Післяплата | LiqPay | MonoPay | VISA/Mastercard | Миттєва розстрочка | Оплата частинами Приватбанк | Покупка частинами Monobank | Безготівково з ПДВ та без ПДВ
Нова Пошта | Meest | Укрпошта | Delivery | Доставка за адресою
*великогабаритні товари надсилаються після часткової передоплати
Обмін і повернення товару здійснюється протягом 14 днів після покупки, згідно закону України "Про захист прав споживачів"
Котел Kronas Auto 5K - це котел нового покоління. Завдяки оригінальному пелетному пальнику, цей котел може працювати на деревному пелеті, а також на пелеті з лушпиння соняшника. Ця модель спроектована так, щоби бути максимально комфортною в експлуатації. 
Котел Kronas Auto 5K це відмінне рішення опалення для тих людей, яким важливий максимальний комфорт та економічність. Завдяки наявності димососа та керамічного каталізатора горіння цей котел може встановлюватися в зоні щільної житлової забудови, а також у безпосередній близькості до висотних споруд.
| Параметр | Од. | Норма для котла КТНп |
| вим. | ||
| Номінальна потужність котла | кВт | 23 |
| Орієнтівна площа опалення | м2 | 230 |
| Паливо | - | пелети, пелети соняшника |
| КПД (номінальне), не менше | % | 91 |
| Ємність бункера | дм3 | 360 |
| Площа теплообміну | м2 | 2,3 |
| Водяна ємність котла | л | 87 |
| Маса котла без води | кг | 315 |
| Необхідна тяга топочних газів | Па | 23-35 |
| Температура топочних газів на виході з котла | °C | 100-180 |
| Рекомендована мінімальна температура води | °C | 55 |
| Максимальна температура води | °C | 95 |
| Номінальний робочий тиск води | МПа | 0,15 |
| Максимальний робочий тиск води, не більше | МПа | 0,2 |
| Випробувальний тиск води, не менше | МПа | 0,4 |
| Споживання електроенергії (230 В, 50 Гц), не | Вт | 180 |
| більше | ||
| Діаметр патрубків прямої та зворотної | мм | 25 |
| мережної води (Ду) | ||
| Діаметр патрубка під запобіжний клапан (Ду) | мм | 15 |
| Приєднувальний зовнішній діаметр димоходу | мм | 128 |
| Рекомендовані параметри димоходу | ||
| площа перерізу | см2 | 117 |
| внутрішній діаметр | мм | 130 |
| висота (мінімально допустима) | м | 5 |
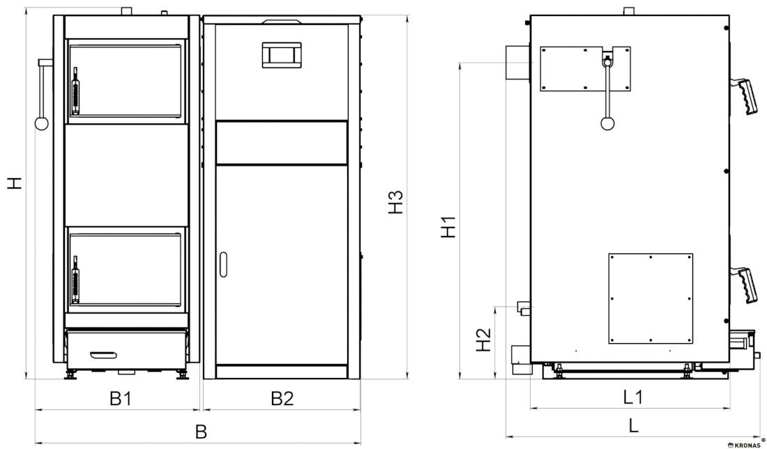
| Габаритні розміри котла | ||
| B | мм | 1245 |
| B1 | мм | 630 |
| B2 | мм | 600 |
| H | мм | 1200 |
| H1 | мм | 985 |
| H2 | мм | 278 |
| H3 | мм | 1400 |
| L | мм | 975 |
| L1 | мм | 715 |

| Вид котла | Пелетний, з автоподачею | |
| Завантаження палива | Автоматична | |
| Країна бренду | Україна | |
| Наявність автоматики | З автоматикою | |
| Наявність авторозпалювання | так | |
| Отоплювана площа, кв.м | до 250 | |
| Гарантійний термін | 5 років на котел, 1 рік гарантії на аксесуари | |
| Заявлений термін служби | 15 років | |
| Потужність, кВт | 23 | |
Я приймаю користувальницьку угоду




