Генератори
sale - Інверторні генератори
- Бензинові генератори
- Газобензинові генератори
- Дизельні генератори
- Дизельні електростанції
Дивитись все
Акумулятори
- Акумулятори гелеві (GEL)
- Акумулятори мультигелеві (AGM)
- Акумулятори свинцево-кислотні (AGM)
- Акумуляторні батареї LiFePO4
- Зарядні пристрої для АКБ
Дивитись все
Показати всі категорії
Готівкою | Післяплата | LiqPay | MonoPay | VISA/Mastercard | Миттєва розстрочка | Оплата частинами Приватбанк | Покупка частинами Monobank | Безготівково з ПДВ та без ПДВ
Нова Пошта | Meest | Укрпошта | Delivery | Доставка за адресою
*великогабаритні товари надсилаються після часткової передоплати
Обмін і повернення товару здійснюється протягом 14 днів після покупки, згідно закону України "Про захист прав споживачів"
Котел тривалого горіння Almax Class P 500кВт - промислова лінійка твердопаливних котлів тривалого горіння. Багатоходивий теплообмінник котла виконаний у вигляді вертикальних полиць, відповідно теплообмінник менше забруднюється, більша частина золи падає до зольника. Чистота теплообмінника впливає на ефективність роботи системи. Котел працює на дровах, паливних брикетах та кам'яному вугіллю.
Котли призначені для опалення побутових, виробничих та інших приміщень, в яких обладнана система центрального опалення, для підготовки та подачі тепла на технологічні потреби з використанням в якості палива дров, деревних відходів, тирсових і торф’яних брикетів, кускового торфу і кам’яного вугілля. Конструкція котлів дозволяє максимально ефективно використовувати тепло, що виділяється при спалюванні різних видів низькокалорійного твердого палива, при цьому найбільша теплопродуктивність котла досягається при спалюванні кам`яного вугілля
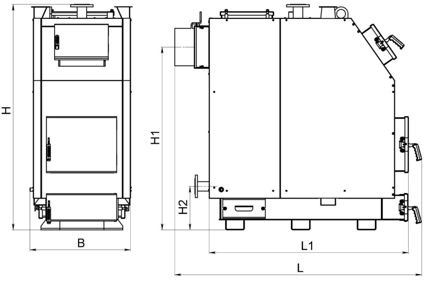
Котел являє собою збірно-зварену конструкцію, що складається з корпус,з камерою згоряння (топкою). Конвекційна частина котла складається з чотирьох-ходового теплообмінник. Корпус котла виконаний в формі паралелепіпеду з подвійними стінками, які розділені водними перегородками. На зовнішній поверхні корпусу під декоративною обшивкою закріплена теплова ізоляція. Паливо для процесу спалення завантажується на колосникові грати крізь завантажувальні дверцята. Колосникові грати виконані з товстостінних безшовних труб по яких постійно циркулює вода з водяної оболонки котла, що унеможливлює їх прогорання. Згоряння палива в топці відбувається за участю повітря, яке постачається по каналу подачі повітря . Кількість повітря, необхідного для процесу згоряння, регулюється автоматично блоком автоматики управління Високотемпературні продукти згоряння, проходячи по теплообміннику, передають тепло шляхом конвекції теплоносію (воді), яка циркулює по водній оболонці котла.
| Номінальна потужність котла | 500 кВт |
| Орієнтовна площа опалення | 5000 м² |
| Параметри топки | |
| Глибина | 1600 мм |
| Об'єм | 3100 дм³ |
| Водяна ємність котла, не менше | 1116 л |
| Вага котла без води | 3120 кг |
| Максимальна температура води | 90 °C |
| Максимальний робочий тиск води, не більше | 0,25 МПа |
| Розміри завантажувальних дверцят | |
| Висота | 600 мм |
| Ширина | 700 мм |
| Приєднання патрубків | 125 (ФЛ) |
| Приєднувальний зовнішній діаметр димоходу | 498 мм |
| Висота димоходу (мінімально допустима) | 14 м |
| Габаритні розміри котла | |
| Висота | 2070 мм |
| Ширина | 1512 мм |
| Глибина | 3318 мм |

Я приймаю користувальницьку угоду


