Генератори
sale - Інверторні генератори
- Бензинові генератори
- Газобензинові генератори
- Дизельні генератори
- Дизельні електростанції
Дивитись все
Акумулятори
- Акумулятори гелеві (GEL)
- Акумулятори мультигелеві (AGM)
- Акумулятори свинцево-кислотні (AGM)
- Акумуляторні батареї LiFePO4
- Зарядні пристрої для АКБ
Дивитись все
Показати всі категорії
Готівкою | Післяплата | LiqPay | MonoPay | VISA/Mastercard | Миттєва розстрочка | Оплата частинами Приватбанк | Покупка частинами Monobank | Безготівково з ПДВ та без ПДВ
Нова Пошта | Meest | Укрпошта | Delivery | Доставка за адресою
*великогабаритні товари надсилаються після часткової передоплати
Обмін і повернення товару здійснюється протягом 14 днів після покупки, згідно закону України "Про захист прав споживачів"
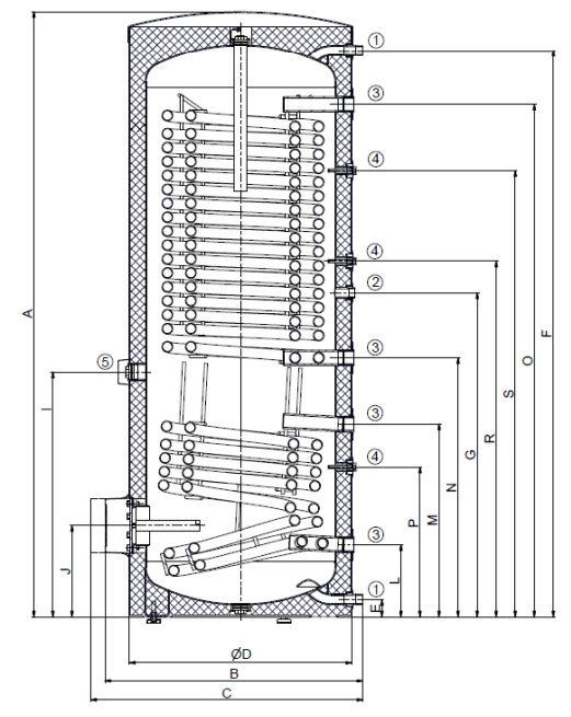
Стаціонарний водонагрівач непрямого нагріву 400 NTRR/HP/SOL призначений для приготування гарячої води геліосистеми. Водонагрівач розроблений та виготовлений як складова частина геліосистеми, що включає інші невід'ємні компоненти, такі як сонячні колектори та їх тримачі (стійки для плоских дахів), розширювальний бак, лінії розподілу вмісту колекторів та інші елементи, необхідні для правильної та безпроблемної роботи геліосистеми. Приготування ГВП (нагрівання від теплоносія системи опалення/геліосистеми)
| Тип | Бойлер непрямого нагріву |
| Тип обладнання | Навісний |
| Об'єм, л | 500 |
| Модельний ряд | NTRR/HP/SOL |
| Форма | Кругла |
| Підведення труб | Збоку |
| Внутрішнє покриття бака | Емаль |
| Висота, мм | 1914 |
| Ширина, мм | 700 |
| Глибина, мм | 700 |
| Кількість теплообмінників | 2 |
| Потужність теплообмінника | 50/58 |
| Тип ТЕНа | Без ТЕНа |
| Робочий тиск атм. | 10 |
| Управління | Механічне |
| Індикатори | Термометр стрілочний |
| Установка | Вертикальна |
| Використовується для | Теплових насосів |

| A | B | C | D | с | F | G | 1 | J | L | М | N | О | P | R | S |
|---|---|---|---|---|---|---|---|---|---|---|---|---|---|---|---|
| 1914 | 812 | 857 | 700 | 55 | 1790 | 1023 | 773 | 288 | 228 | 609 | 818 | 1618 | 473 | 1123 | 1409 |
Інструкція Бойлер Drazice OKC 500 NTRR/HP/SOL
Я приймаю користувальницьку угоду



