Генератори
sale - Інверторні генератори
- Бензинові генератори
- Газобензинові генератори
- Дизельні генератори
- Дизельні електростанції
Дивитись все
Акумулятори
- Акумулятори гелеві (GEL)
- Акумулятори мультигелеві (AGM)
- Акумулятори свинцево-кислотні (AGM)
- Акумуляторні батареї LiFePO4
- Зарядні пристрої для АКБ
Дивитись все
Показати всі категорії
Готівкою | Післяплата | LiqPay | MonoPay | VISA/Mastercard | Миттєва розстрочка | Оплата частинами Приватбанк | Покупка частинами Monobank | Безготівково з ПДВ та без ПДВ
Нова Пошта | Meest | Укрпошта | Delivery | Доставка за адресою
*великогабаритні товари надсилаються після часткової передоплати
Обмін і повернення товару здійснюється протягом 14 днів після покупки, згідно закону України "Про захист прав споживачів"
Котел на соломі тривалого горіння Wichlacz GKS потужність 38 кВт є інноваційним рішенням для опалення приміщень площею до 380 м², призначеним для ефективного спалювання соломи та інших видів твердого палива. Унікальна технологія пошарового верхнього горіння (метод "свічі") забезпечує високий коефіцієнт корисної дії від 82 до 89%. Конструкція котла передбачає ручне завантаження палива через широкі дверцята розміром 420×520 мм, що дозволяє використовувати тюки соломи різних форм та розмірів. Товста внутрішня обшивка котла (6 мм) та водоохолоджувані решітки підвищують надійність та довговічність обладнання. Спеціальна система теплообмінника трубної конфігурації площею 4 м² забезпечує ефективне нагрівання та тривале утримання тепла. Автоматичне регулювання та вентилятор оптимізують процес горіння та підтримують стабільну температуру в опалювальному приміщенні. Завантажувальні дверцята обладнані водяною сорочкою, що підвищує експлуатаційні характеристики та додатково акумулює теплову енергію. Котел характеризується простотою обслуговування - достатньо очищати його лише 2-3 рази на місяць. Гнучкість у виборі палива (солома, дерево, вугілля, побутові відходи) робить цю модель економічно вигідною та адаптованою до різних умов експлуатації.
Котли Wichlacz GKS працюють на різноманітних видах твердого палива, таких як деревина, вугілля, кокс, тверді побутові відходи та можуть солом’яними тюками різних форм та розмірів т.п.. Це надає власникам гнучкість у виборі палива залежно від його доступності та ціни, а також дозволяє адаптувати систему опалення під місцеві умови.

| Потужність котла | 38 кВт |
| Площа обігріву приміщення | 380 м² |
| Площа теплообмінника | 4 м² |
| Об'єм топки | 0,21 м² |
| Глибина топки | 830 мм |
| Тип завантаження | Ручний |
| Тип палива | Солома |
| Кількість підключень | 2 |
| Переріз димоходу | 200×200 мм |
| Ширина дверцят | 420 мм |
| Висота дверцят | 520 мм |
| Висота котла | 1350 мм |
| Ширина котла | 690 мм |
| Довжина котла | 1070 мм |
| Товщина металу топки | 6 мм |
| Товщина металу корпусу | 6 мм |

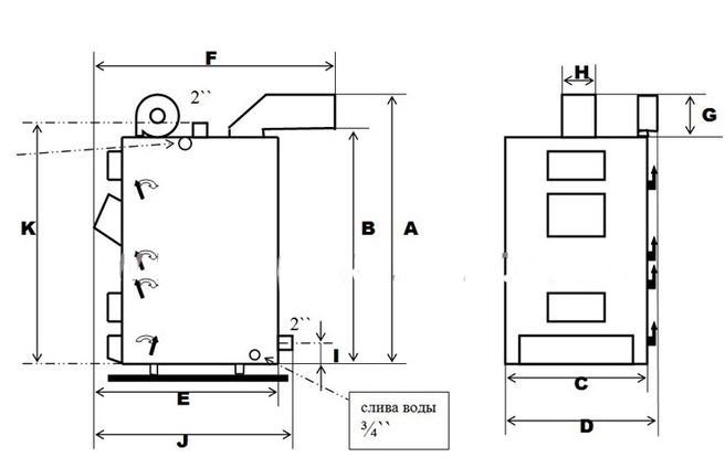
| Висота (A) | 155 см |
| Висота корпусу (B) | 135 см |
| Висота до завантажувального отвору (C) | 60 см |
| Ширина (D) | 65 см |
| Ширина корпусу (E) | 107 см |
| Довжина (F) | 120 см |
| Висота з'єднувача (G) | 20 см |
| Ширина з'єднувача (H) | 20 см |
| Висота від підлоги до зольника (I) | 8 см |
| Висота до димоходу (J) | 110 см |
| Загальна висота з димоходом (K) | 135 см |
| Під'єднання (Т1; Т2) | 2″ |
| Об’єм води в котлі | 140 л |
| Маса котла без води | 510 кг |
Я приймаю користувальницьку угоду




